Если цена в объявлении изменится, мы сразу сообщим вам об этом на электронную почту.
Нажимая «Подписаться», вы соглашаетесь с правилами.
продам 1-к квартира6 238 853 ₽
25 янв 2025
Дата публикации объявления
Обн. вчера
Дата обновления объявления
Спецпредложение
Турбо x8
194 660 ₽/м²
Чистая продажа
Термин "Чистая продажа" означает, что в квартире никто не прописан или
есть куда выписаться и вывезти вещи. Это лучший вариант для покупателя.
Вероятность срыва сделки минимальна.
Квартира
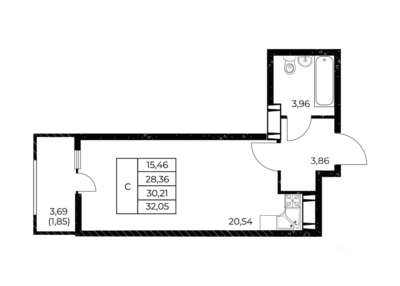
Общая площадь32,05 м2
Тип квартирыстудия
Тип собственностидоговор долевого участия
Дом
Срок сдачи4 кв. 2028 г.
Этаж13 из 25
Материал домакирпич - монолит
Студия в ЖК ''Звезда Столицы 2'' — компактное решение с максимальной выгодой
Идеальный вариант, если вы хотите первую недвижимость, квартиру для аренды или удобное пространство для жизни в центре города.
Формат, который реально удобен:
— Эргономичная планировка без ''мертвых зон'',
— Легко зонируется на кухню, спальню и рабочее место,
— Большие окна — много света,
— Высокие потолки создают ощущение простора.
Максимум пользы с каждого квадратного метра.
Этаж — 13
Площадь — 32.05 м²
Акции и условия покупки:
— Рассрочка 0% без переплат на 6 месяцев,
— Семейная ипотека 4% на период строительства (платеж от 16.316?
Студия в ЖК ''Звезда Столицы 2'' — компактное решение с максимальной выгодой
Идеальный вариант, если вы хотите первую недвижимость, квартиру для аренды или удобное пространство для жизни в центре города.
Формат, который реально удобен:
— Эргономичная планировка без ''мертвых зон'',
— Легко зонируется на кухню, спальню и рабочее место,
— Большие окна — много света,
— Высокие потолки создают ощущение простора.
Максимум пользы с каждого квадратного метра.
Этаж — 13
Площадь — 32.05 м²
Акции и условия покупки:
— Рассрочка 0% без переплат на 6 месяцев,
— Семейная ипотека 4% на период строительства (платеж от 16.316?/мес),
— Семейная ипотека 3,5% на весь срок на студии 29,62 и 32,05м (платеж от 16.900?/мес).
Звоните — подберем лучший вариант студии и рассчитаем условия именно под вас.
О жилом комплексе — уровень выше рынка.
Проект — как яркая звезда в городской среде: заметный, престижный и притягивающий внимание.
В окружении — всё, что нужно для комфортной и насыщенной жизни: развитая социальная инфраструктура, транспорт, сервисы.
Гранд-лобби с зонами ожидания, встреч и коворкингом,
Собственный кинотеатр и игровая комната прямо в доме,
Подземный паркинг с зарядкой для электромобилей,
Крыша-терраса с зоной отдыха и наблюдения за городом.
Это не просто квартира — это полноценная среда для жизни.
Локация — один из главных активов.
Находится на пересечении ключевых транспортных артерий ул. Нансена и Шеболдаева — отличная доступность в любую точку города.
Вы экономите время каждый день.
Почему стоит купить сейчас:
Такие объекты быстро уходят — из-за локации, уровня проекта и доверия к застройщику.
Надежный застройщик — ДОННЕФТЕСТРОЙ:
— Более 17 000 довольных покупателей,
— Соблюдение сроков и качество строительства,
— Более 912 000 м² введённого жилья.
Покупка напрямую — без переплат и посредников.
Остались вопросы? Позвоните — всё подробно расскажем и поможем с выбором.
Условия и акции зависят от лимитов банков. Точную информацию о ценах и наличии уточняйте у нашего отдела продаж.
*Рендеры носят иллюстративный характер и демонстрируют возможный вариант оформления квартиры, не являясь ремонтом от застройщика.