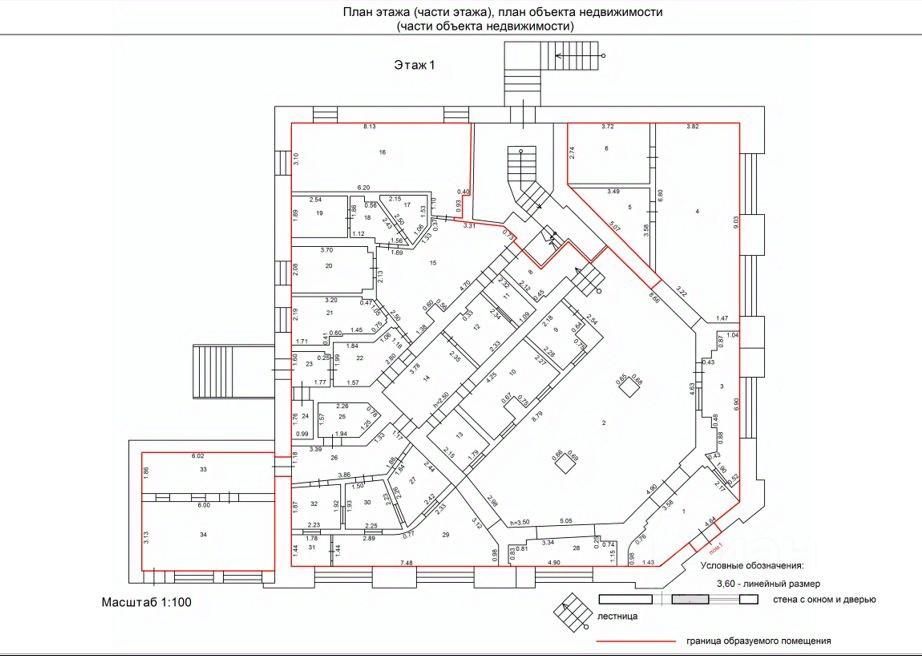
Сбер А предлагает к аренде нежилое помещение, площадью 496,3 кв.м. (подвал, 1 этаж), расположенного по адресу: Ростовская обл., Цимлянский район, г. Цимлянск, ул. Ленина 31/30 пом. 1
Аренда посредством проведения торгов на электронной площадке Сбербанк-АСТ.
Номер процедуры: SBR065-2511240014
Собственник: Юго-Западный Банк ПАО Сбербанк
О лоте:
Нежилое помещение общей площадью 496,3 кв.м.
Этаж: подвал, 1/1
Кадастровый номер: 61:41:0010729:111
Дополнительная информация, документы и условия реализации указаны на площадке в разделе ''Документы''.
По всем вопросам, связанным с лотом, обращайтесь в рабочее время по телефону с 09: 00 до 18: 00 по МСК.



