Если цена в объявлении изменится, мы сразу сообщим вам об этом на электронную почту.
Нажимая «Подписаться», вы соглашаетесь с правилами.
продам 2-к квартира13 201 000 ₽
29 янв
Дата публикации объявления
Обн. вчера
Дата обновления объявления
2
Количество просмотров (+ просмотры за сегодня)
Спецпредложение
Турбо x8
215 000 ₽/м²
Чистая продажа
Термин "Чистая продажа" означает, что в квартире никто не прописан или
есть куда выписаться и вывезти вещи. Это лучший вариант для покупателя.
Вероятность срыва сделки минимальна.
Квартира
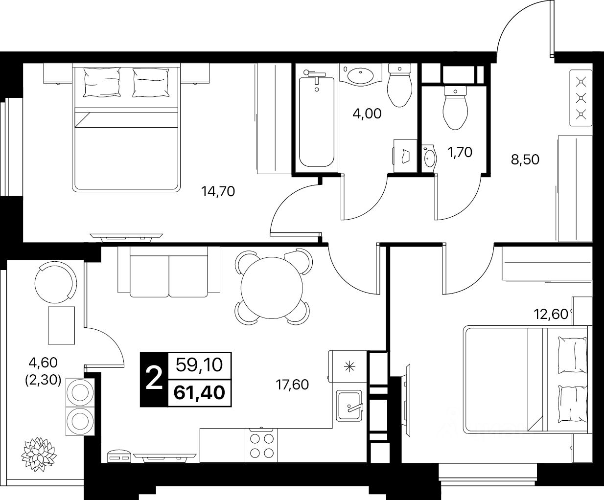
Общая площадь61,4 м2
Жилая площадь27,3 м2
Кухня17,6 м2
Количество лоджий1
Тип собственностидоговор долевого участия
Дом
Этаж13 из 20
Материал домакирпич - монолит
2-комнатная квартира в ЖК ''Эстет'' — идеальное пространство для жизни от надежного застройщика ЮгСтройИнвест.
Если вы ищете современную, комфортную и продуманную квартиру с отдельными комнатами — 2-комнатный вариант в квартале ''Эстет'' отлично подойдет. Это формат, который объединяет практичность, красоту и качество строительства от крупного федерального застройщика ЮгСтройИнвест.
Планировка: Спальня + отдельная кухня-гостиная, Продуманное зонирование: тихая спальная зона, общая гостиная, Большие окна, много естественного освещения, Продуманные ниши под шкафы и гардеробные, Балкон. Уютное пространство, где можно комфортно жить, работать, отдыхать и принимать гостей.
2-комнатная квартира в ЖК ''Эстет'' — идеальное пространство для жизни от надежного застройщика ЮгСтройИнвест.
Если вы ищете современную, комфортную и продуманную квартиру с отдельными комнатами — 2-комнатный вариант в квартале ''Эстет'' отлично подойдет. Это формат, который объединяет практичность, красоту и качество строительства от крупного федерального застройщика ЮгСтройИнвест.
Планировка: Спальня + отдельная кухня-гостиная, Продуманное зонирование: тихая спальная зона, общая гостиная, Большие окна, много естественного освещения, Продуманные ниши под шкафы и гардеробные, Балкон. Уютное пространство, где можно комфортно жить, работать, отдыхать и принимать гостей.
О жилом квартале: Главная особенность проекта — комфортная среда, в которой хочется проводить время: Дворы без машин — безопасно и спокойно, Ландшафтные зоны, зеленые маршруты, спортивные и детские площадки, Продуманный свет, камеры наблюдения, закрытая территория, Красивое оформление фасадов и входных групп, Подземный и надземный паркинг с удобным доступом к подъездам.
Квартал создает ощущение уюта и безопасности — у вас всегда будет место, куда приятно возвращаться.
Застройщик, которому доверяют ЮгСтройИнвест — одна из ведущих компаний ЮФО: Проекты по 214-ФЗ, Масштабные жилые районы по всей России, Качественные материалы и строгие строительные стандарты, Профессиональная архитектура и благоустройство.
Выгоды, доступные покупателям Выгода до 560 000 ? на квартиры в квартале ''Эстет'', Ипотека 5% на первые 24 месяца, Ипотека без первоначального взноса (ПВ 0%), Маткапитал как первый взнос, Семейная ипотека — от 3,5%, Скидка при оформлении в день обращения, Скидка для сотрудников Сбера — 5 000 ?/м², Скидки молодоженам и иногородним, Квартира + паркинг по специальной цене,
Условия покупки: Ипотека на выгодных условиях, Рассрочка, Дистанционная сделка, Помощь в одобрении ипотеки, Полностью официальное оформление.
Почему это удачный выбор: Комфортная площадь для семьи или пары, Современный и красивый квартал, Высоколиквидная планировка — отличный вариант для будущей перепродажи, Доступность — акции и сниженные ипотечные ставки, Надежность — ЮгСтройИнвест с безупречной историей.
Напишите — пришлем список доступных квартир, планировки и актуальные цены.
Не упустите ваш шанс начать новую жизнь в качественном, современном и комфортном доме от ЮгСтройИнвест.