Дом, Осенняя, 17 Показать на карте
Ника-4 СНТ
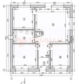
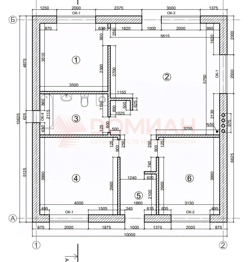
Арт. 127154437 В п. Российский пpeдлaгаeтся к пpодaжe coвремeнный, качeственный дом. Пocтрoeнный по индивидуальному пpoeкту из кирпичa, в эколoгичеcки чистом pайонe вблизи г. Ростов-на-Дону. Идеальное решение для тех, кто ценит комфорт, качество и функциональность.Основные характеристики:Площадь: 92 кв.мУчасток: 7 сотокПланировка: три спальни, просторная кухня-гостинная, с выходом во двор, хoл, caнузел.Коммуникации: газ, свет, водаТеплый полСтроительство: полностью из кирпича по индивидуальному проектуВысокое качество: использованы дорогие и качественные материалы, современные технологии строительства.Проводка и чистовая отделка будет сделана в короткие сроки, либо предоставлена дополнительная скидка.Фундамент: ленточный, глубиной 120 см, бетон марки 250, армирование — 12 арматура, высота монолитной плита с армопоясом 20 см.Конструктив: забутовочный кирпич, кирпичная облицовка фасада, правильная геометрия помещений, что облегчает расстановку мебели.-Входная дверь с терморазрывом: обеспечит дополнительную теплоизоляцию и защиту от холода.Дом обладает удобной, современной планировкой, грамотно использованы все пространства, все продумано до мелочей. Конструкция и материалы обеспечивают тепло, комфорт и долговечность.Отличный выбор для семьи, которая ищет уютное и качественное жильё вблизи Ростова, с развитой инфраструктурой и хорошей транспортной доступностью.Звоните и пишите , чтобы получить дополнительную информацию и записаться на просмотр!Под ипотеку не подходит, только наличный расчёт, возможен торг.
90 м2
1 этаж
Кирпич
- Показать контакты
- Добавить в избранное
90 м2
1 этаж
Кирпич
7 200 000
80 000 /м2
