Дом, Щепкин Показать на карте
Щепкин
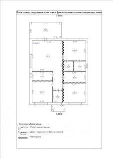
В п. Щепкин проезд Медный з/у 10, продаётся кирпичный дом площадью 149 м², скоро будет достроенный в ближайшее время. Расположен на участке 5 соток категории ИЖС. Одноэтажный дом с тремя комнатами , будет с пред чистовой отделкой . На территории будет терраса 20 кв.м., где можно наслаждаться свежим воздухом.К дому будут подведены все коммуникации Также будет подвал 15 кв.м., крыша мягкая черепица, бетон - 250Отличный вариант для тех, кто ищет спокойствие и уединение вдали от городской суеты.Объект реальный! Подходит под все виды ипотеки! Семейная ипотека! Просмотр в любое для вас удобное время!
150 м2
1 этаж
Кирпич
- Показать контакты
- Добавить в избранное
150 м2
1 этаж
Кирпич
8 000 000
53 333 /м2
