Дом, Лиманный переулок Показать на карте
Николаевка
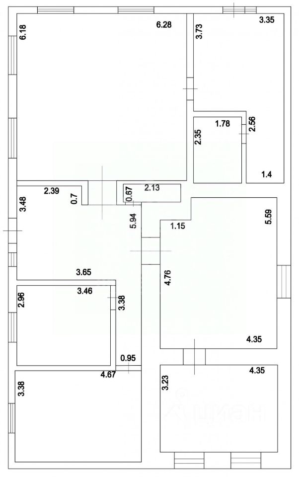
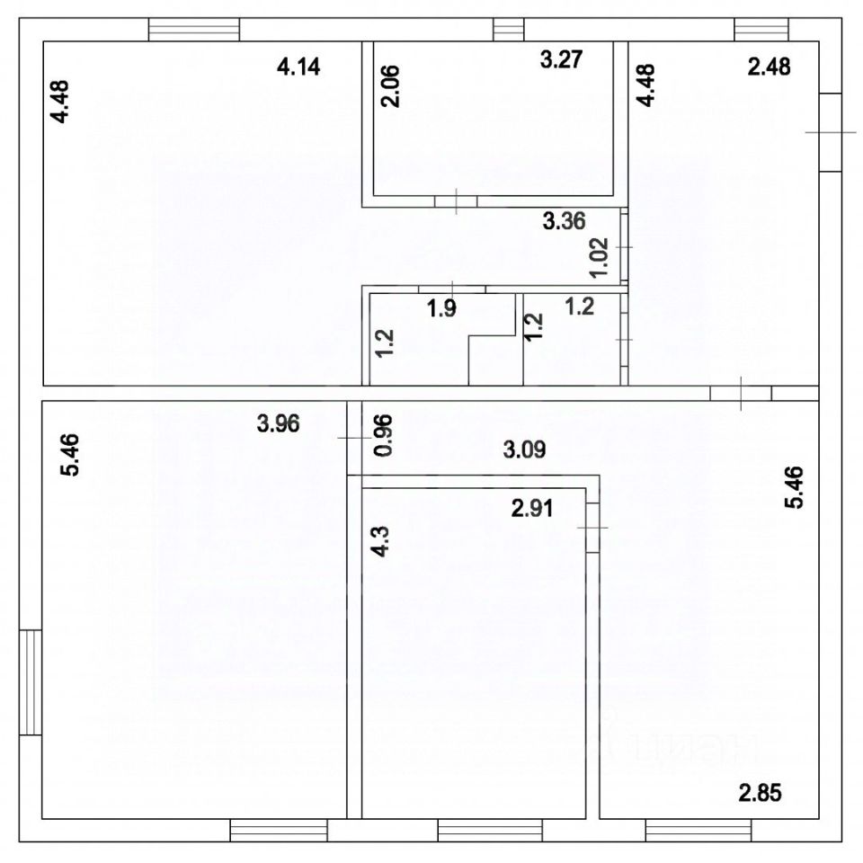
Продается кирпичный дом с приусадебным участком площадью 8 соток! Этот уютный и просторный дом станет идеальным местом для вашей семьи. На участке вы найдете все необходимое для комфортной жизни: хозяйственные постройки, душ и туалет. Также под домом есть подвал, который можно использовать для хранения или как дополнительное пространство. Отопление осуществляется с помощью электрического котла, а газ проходит рядом, что дает возможность подключить его в будущем. В непосредственной близости расположены школы, детские сады, магазины. Не упустите шанс стать владельцем этого замечательного дома! Звоните и записывайтесь на просмотр уже сегодня!Дополнительно оплачивается комиссия с покупателя. Код пользователя: 198061Номер в базе: 4386531
88 м2
3 этажа
- Показать контакты
- Добавить в избранное
88 м2
3 этажа
3 800 000
42 841 /м2
