1-к, Аксайский проспект Показать на карте
Аксай
Литер 3.2, 9 этаж, 329. Микрорайон ''Придонье'' - прекрасная возможность жить в спокойном, зеленом и комфортном месте, всего в 7 минутах езды от Ростова-на-Дону. Небольшой и уютный Аксай создан именно для того, чтобы остановиться, провести время с семьей и отдохнуть от столичного ритма, при этом все возможности мегаполиса остаются под рукой. Квартира находится в современном микрорайоне с развитой инфраструктурой. Идеальный вариант для тех, кто ищет гармонию между тишиной, пространством для жизни и близостью к большому городу. Звоните для всех деталей и просмотра.Вся необходимая инфраструктура в пешей доступностиПродуманное содержаниеПросторные дворыБезбарьерная средаВсе для детей всех возрастовШкола на 1 810 местДва детских сада, общая вместимость 770 местДве ПоликлиникиПожарное депо на 6 машинОпорный пункт полицииСтанция скорой помощи на 2 бригадыБульварЛетний кинотеатрЗона для настольных игрТропа здоровьяВело-беговая дорожкаВоркаут зоны для взрослых и детейЗоны отдыха и релаксаТихие зоны с качелями и навесамиПлощадки для выгула собак + лапомойкиПодземный и наземный паркингЗарядные станции для электромобилейВидеонаблюдениеУмная система контроля посетителейСовременные умные домофоныПриобрести квартиру можно одним из способов:-субсидированная семейная ипотека от 3,5 % на весьсрок-рассрочка-оплата наличными-дистанционная покупкаПозвоните сейчас и забронируйте квартиру соскидкой!
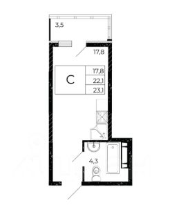
23 м2
9 / 18 этаж
Кирпич - монолит
- Показать контакты
- Добавить в избранное
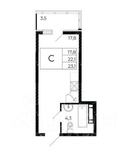
23 м2
9 / 18 этаж
Кирпич - монолит
5 089 500
217 500 /м2
Новостройка,
II-2028
II-2028
