3-к квартира Показать на карте
Октябрьский район, Стройгородок
Ростов-на-Дону
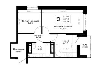
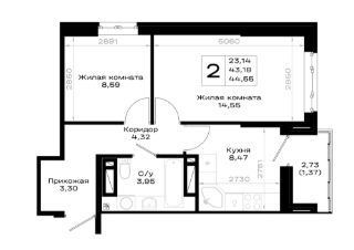
Литер 8.1, 5 этаж, 309. Жилой комплекс ''Октябрь Парк'' представляет собой целостную экосистему, созданную по популярной и востребованной концепции ''город в городе''. Его главная идея - предоставить жителям всё необходимое для полноценной жизни, учёбы, отдыха и спорта в пределах одной территории, что максимально экономит время и создаёт ощущение комфорта и самодостаточности. Ключевым преимуществом для семей становится наличие собственной школы и детских садов прямо во дворе, что решает вопрос безопасности и ежедневной логистики. Развитая инфраструктура в шаговой доступности - магазины, аптеки, салоны красоты в минуте ходьбы от дома - избавляет от рутины долгих поездок за повседневными мелочами. Заявленный класс ''комфорт-плюс'' подразумевает не просто жилые дома, а качественно спланированное, озеленённое и безопасное пространство с зонами для всех возрастов.Вся необходимая инфраструктура в пешей доступностиПродуманное содержаниеПросторные дворыБезбарьерная средаВсе для детей всех возрастовШкола на 2500 мест с бассейномТри детских сада, общая вместимость 765 местФизкультурно - оздоровительный комплексПоликлиникаПарк 5 гаСквер и аллея на территорииДетские площадки от ''Айра''Спортивные площадкиПлощадки для выгула собак + лапомойкиПодземный и наземный паркингЗарядные станции для электромобилейВидеонаблюдениеУмная система контроля посетителейСовременные умные домофоныПриобрести квартиру можно одним из способов:-субсидированная семейная ипотека от 3,5 % на весьсрок-рассрочка-оплата наличными-дистанционная покупкаПозвоните сейчас и забронируйте квартиру соскидкой!
86 м2
5 / 25 этаж
Монолит
- Показать контакты
- Добавить в избранное
86 м2
5 / 25 этаж
Монолит
18 305 699
211 700 /м2
Новостройка,
IV-2028
IV-2028
