3-к, Содружества, 39/1 Показать на карте
Советский район, Западный жилой массив (ЗЖМ)
Ростов-на-Дону
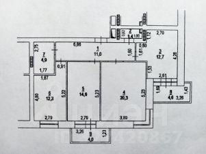
Арт. 120522738 Продается уютная 3-комнатная квартира в престижном районе Золотого квадрата. Квартира принадлежит одному взрослому собственнику, готова к заселению. Общая площадь квартиры составляет 60,3 кв.м., из которых 42,4 кв.м. занимают жилые комнаты, а кухня площадью 7,3 кв.м. станет идеальным местом для приготовления вкусных блюд. Квартира оснащена двумя балконами: один выходит на запад, а другой — на восток, что обеспечивает прекрасное освещение и возможность наслаждаться утренним солнцем. Вход в квартиру осуществляется через тамбур, где расположены две квартиры, что добавляет уюта и уединения. В доме недавно был проведен капитальный ремонт, крыша и подъезд находятся в идеальном состоянии, а новый лифт обеспечивает комфортное передвижение между этажами. Расположение квартиры очень удобное: в шаговой доступности находятся ТРЦ ТАЛЕР, рынок Привоз, ЮФУ, лицей 103, лицей 58, гимназия 117, школа 112 и детский сад 296. Также вблизи расположены пиццерия ''Сицилия'', поликлиники 10 и 42, детская поликлиника 45 и Областная больница. Это место идеально подходит для семейной жизни и комфортного проживания. Транспортная развязка позволяет легко добраться в любое направление города, что делает эту квартиру отличным выбором для тех, кто ценит удобство и качество жизни. Не упустите шанс стать владельцем этого замечательного жилья!Дополнительно оплачивается комиссия покупателем. Полное юридическое сопровождение, помощь в одобрении ипотеки.
60 м2
9 / 9 этаж
Панель
- Показать контакты
- Добавить в избранное
60 м2
9 / 9 этаж
Панель
5 300 000
87 894 /м2
