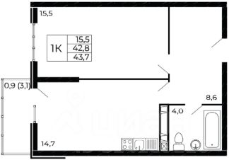
1-к квартира Показать на карте
Советский район, Левенцовский
Ростов-на-Дону
ДОМ СДАНУспейте приобрести квартиру со скидкой к Новому году! В ДОННЕФТЕСТРОЙ цены уровня 2020 г.! Успейте забронировать квартиру в ЖК ''Западные Аллеи'' со сдачей в этом году!Предложения в этом месяце:• Скидки до 25 000?/м² (учтено в цене)• Семейная ипотека 6% на весь срок• Первый взнос от 0%• Квартиры от 14 400 ?/мес.В ЛЮБОЙ ДЕНЬ АКЦИЯ МОЖЕТ БЫТЬ ОТМЕНЕНА!_________________Внимание! Выгодные условия по Семейной ипотеке скоро отменят! Уже скоро условия программы ''Семейная Ипотека'' могут измениться:• первоначальный взнос вырастет с 20,1% до 40,1%,• ежемесячные платежи увеличатся почти вдвое,• ставка поднимется до 12% и будет зависеть от количества детей,• оформить семейную ипотеку можно будет только один раз на семью.Успейте воспользоваться действующими льготами, пока они ещё доступны._________________Вы можете выбрать один из вариантов отделки: Черновая, Предчистовая (white-box), Ремонт под ключ (2 стилевых решения).Покупая квартиру в ЖК ''Западные Аллеи'', Вы приобретаете:• подземные и наземные парковочные места,• закрытую территорию и видеонаблюдение,• спортивные и детские площадки с прорезиненным покрытием,• два детских сада и школу на территории,• уникальную благоустроенную территорию,• премиальные холлы,• зоны для отдыха,• и многое другое.При покупке НАПРЯМУЮ ОТ ЗАСТРОЙЩИКА получите индивидуальную скидку!Звоните сейчас!
35 м2
2 / 18 этаж
Кирпич - монолит
- Показать контакты
- Добавить в избранное
35 м2
2 / 18 этаж
Кирпич - монолит
5 513 200
154 000 /м2
Новостройка,
дом сдан
дом сдан
