Если цена в объявлении изменится, мы сразу сообщим вам об этом на электронную почту.
Нажимая «Подписаться», вы соглашаетесь с правилами.
продам 1-к, Макаровского, 4 корп. 24 616 000 ₽
24 окт 2024
Дата публикации объявления
Обн. 11 мая
Дата обновления объявления
4
Количество просмотров (+ просмотры за сегодня)
Топ
Турбо x8
122 766 ₽/м²
Чистая продажа
Термин "Чистая продажа" означает, что в квартире никто не прописан или
есть куда выписаться и вывезти вещи. Это лучший вариант для покупателя.
Вероятность срыва сделки минимальна.
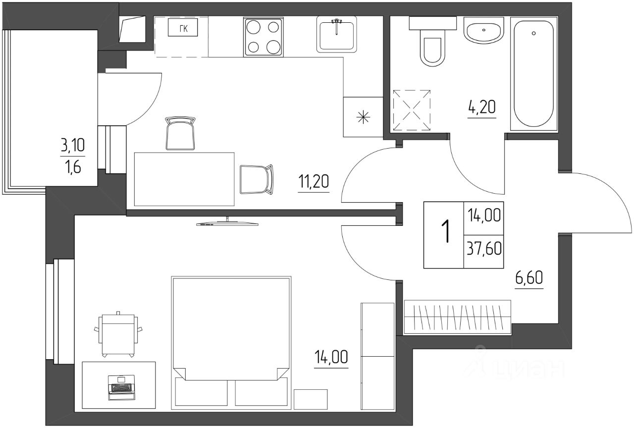
Квартира
Общая площадь37,6 м2
Тип собственностисвидетельство о праве собственности
Продаётся 1-комнатная квартира в сданном доме (Макаровского, 4к2 (Позиция 14)), срок сдачи: III-кв. 2024, общей площадью 36 кв.м., на 3 этаже. Квартира от застройщика с отделкой под ключ. Дом сдан, вручение ключей сразу после подписания акта приема-передачи. Подходит под ипотеку, в том числе семейную, военную. Все виды жилищных сертификатов, материнский капитал. Заключаем договоры купли-продажи.
Продаётся 1-комнатная квартира в сданном доме (Макаровского, 4к2 (Позиция 14)), срок сдачи: III-кв. 2024, общей площадью 36 кв.м., на 3 этаже. Квартира от застройщика с отделкой под ключ. Дом сдан, вручение ключей сразу после подписания акта приема-передачи. Подходит под ипотеку, в том числе семейную, военную. Все виды жилищных сертификатов, материнский капитал. Заключаем договоры купли-продажи. • металлопластиковые окна, • индивидуальное поквартирное отопление, • полипропиленовые трубы горячего и холодного водоснабжения, • установлены водяные, электрические и газовые счетчики, • медная электрическая разводка, евророзетки и выключатели, • выводы электропитания под кондиционеры, • полы из ламината 32 класса в жилых комнатах, керамогранитной плитки на кухне. • cтены: жилые комнаты — обои, санузел и в ванной - плитка, • в санузлах установлена сантехника - подвесной унитаз, ванна, раковина с тумбой, смесители. • пластиковый плинтус с кабель-каналом, • качественные межкомнатные двери, • стальная входная дверь, • лоджия (балкон) остеклены, с внутренней отделкой. Индивидуальное газовое отопление Добросовестная управляющая компания Наличие продуктово-продовольственных магазинов 15 минут до центра Ростова-на-Дону Наличие общественного транспорта