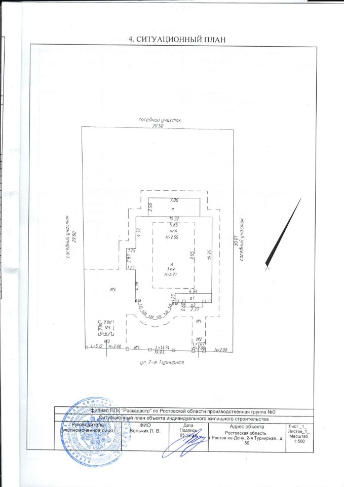
Кирпичный дом под чистовую отделку. Два этажа плюс мансарда. Два балкона и веранда. Газ, электроэнергия, вода, септик. Дорога - хорошее щебеночное покрытие, до асфальта 150м. Охраняемый въезд на территорию.
Благоустроенная территория, парковка на 2 автомобиля, фруктовые и декоративные растения, забор, беседка, раздвижные электрические ворота. Бетонное основание под бассейн.
Хорошая планировка 3 спальни, 3 санузла, большая кухня-столовая-гостиная 56кв.м.















