Дом, проезд Медный Показать на карте
Щепкин
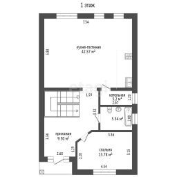
Продается великолепный одноэтажный дом в живописном поселке Щепкин! . Построенный с соблюдением всех строительных норм и правил, он отличается высоким качеством материалов и вниманием к деталям.Внутри дома выполнена предчистовая отделка стен, залита стяжка пола, а также проведена электропроводка, что позволяет вам сразу приступить к созданию уютного пространства по своему вкусу. Удобная и продуманная планировка включает светлую кухню-гостиную с выходом на террасу, три просторные спальни , а также санузел.Отопление осуществляется с помощью газового котла, а для водоснабжения используется скважина. Канализация представлена ямой на три кольца. Участок площадью 5 соток имеет ровную прямоугольную форму, что дает возможность для обустройства сада или зоны для отдыха. Все документы готовы к сделке.Подходит наличный расчет или ипотека.Не упустите шанс стать владельцем этого замечательного дома! Звоните прямо сейчас, и я с удовольствием покажу его вам в удобное для вас время!Дополнительно оплачивается комиссия с покупателя. Код пользователя: 111880Номер в базе: 3858674
104 м2
1 этаж
- Показать контакты
- Добавить в избранное
104 м2
1 этаж
7 100 000
68 269 /м2
