id:2501.
Продаю отличный дом в одном из самых престижных районов города - ЖДР / Вертолетное поле.
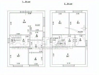
В доме выполнены все подготовительные работы, осталась чистовая отделка (покрасить стены, сделать пол, потолок и привезти мебель).
Во дворе - плитка ,газон, установлен забор и ворота.
Стильный внешний дизайн, удобная планировка, высокое качество строительства, учтены все мелочи и нюансы... одни только плюсы :-)
Цена 16 000 000 руб.
Звоните и договаривайтесь о показе.
Арт. 95762417













