сдам офисное помещение, Буденновский проспект, 42/506 000 000 ₽ в месяц
7 дек
Дата публикации объявления
Обн. сегодня
Дата обновления объявления
1
Количество просмотров (+ просмотры за сегодня)
2000 ₽/м² в месяц
Параметры
Общая площадь3000 м2
Этаж3
Назначение помещения
для работы с клиентами
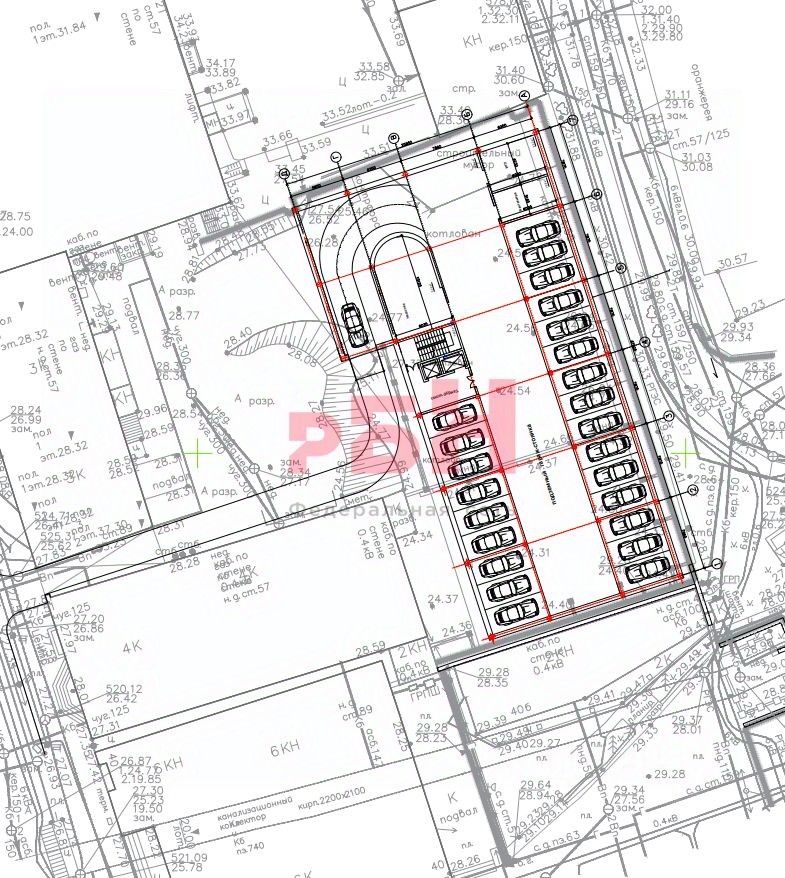
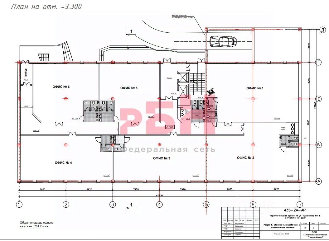
Номер объекта: 551144. Современный офис в 3-х этажах с подземным паркингом в новом здании площадью 3000 кв. м по адресу г. Ростов-на-Дону, Будённовский проспект, 42/50. Срок сдачи в эксплуатацию конец 2026 года. Строящееся здание в ТЦ Континенталь
Характеристики и преимущества: - объект занимает 3-ри этажа, площадь каждого этажа 1000 кв. м Возможна аренда поэтажно или всего здания (5-ть этажей + подземный паркинг)
- объект расположен в самом Центре города, развитая инфраструктура, по соседству расположен Магнит Косметик, супермаркет Пятерочка, банк, спортбар, кафе, аптека, ресторан, вблизи располагается детский сад, гостиница, ВкусВилл, ВУЗ, Центральный парк им. М.
Номер объекта: 551144. Современный офис в 3-х этажах с подземным паркингом в новом здании площадью 3000 кв. м по адресу г. Ростов-на-Дону, Будённовский проспект, 42/50. Срок сдачи в эксплуатацию конец 2026 года. Строящееся здание в ТЦ Континенталь
Характеристики и преимущества: - объект занимает 3-ри этажа, площадь каждого этажа 1000 кв. м Возможна аренда поэтажно или всего здания (5-ть этажей + подземный паркинг)
- объект расположен в самом Центре города, развитая инфраструктура, по соседству расположен Магнит Косметик, супермаркет Пятерочка, банк, спортбар, кафе, аптека, ресторан, вблизи располагается детский сад, гостиница, ВкусВилл, ВУЗ, Центральный парк им. М. Горького, Дом культуры, Ростовский государственный цирк и другое - на территории ТЦ Континенталь - 1-я линия, высокий автомобильный и пешеходный трафик, возможно размещение рекламной вывески на фасаде здания (фасад отлично просматривается) - удобная транспортная доступность
- вход с пр-т Буденновский и ул. Пушкинская, подземная парковка с паркомата - разрешенная мощность 500 кВт - все коммуникации центральные - состояние сдачи - стяжка и штукатурка. Но МОПы будут сделаны под ключ - система приточно-вытяжной вентиляции, кондиционирование - охранная и пожарная сигнализация - скоростной интернет
Идеально подойдёт под представительский офис крупной организации! ------------------------------------------------- ----------------------------------- По всем вопросам можете обращаться к вашему персональному менеджеру: Мозговой Николай - консультанты по направлению офисные, торговые и складские помещения ------------------------------------------------- ----------------------------------- Регион Бизнес Недвижимость От собственника. Без комиссии.