сдам универсальное помещение, Вавилова, 71в450 000 ₽ в месяц
20 янв
Дата публикации объявления
Обн. 25 фев
Дата обновления объявления
1022 ₽/м² в месяц
Параметры
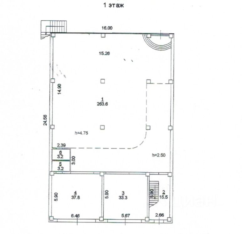
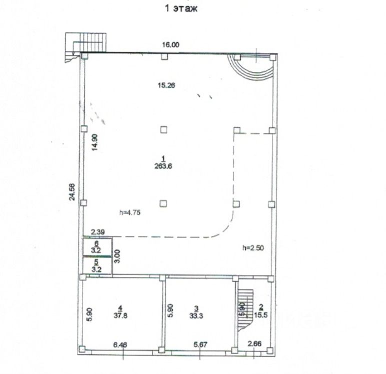
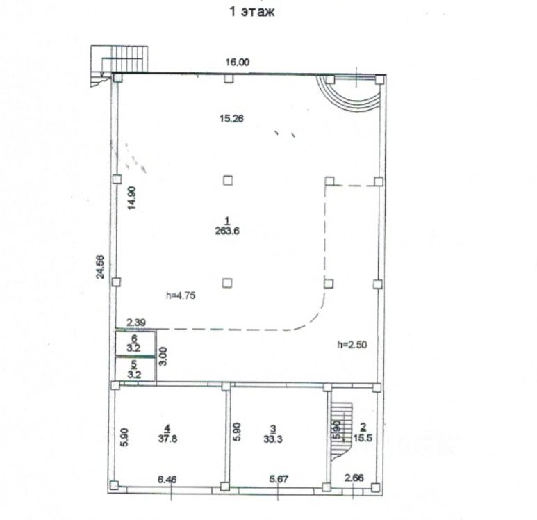
Общая площадь440 м2
Этаж1
Отдельный входесть
Назначение помещения
для работы с клиентами
Сдаётся помещение свободного назначения 440 м2 на 1 этаже трёхэтажного здания, отлично подходит под торговлю, медицину, шоурум, офис продаж.
Сдаётся помещение свободного назначения 440 м2 на 1 этаже трёхэтажного здания, отлично подходит под торговлю, медицину, шоурум, офис продаж. Планировка : - торговый зал -- 250 м2 - два отдельных помещения по 50 м2 - антресоль с кабинетами -- 70 м2 - высота потолков в зале и помещениях -- 4,8 м Характеристики : - 1 этаж - отдельный вход с улицы - витринные окна выходят на охраняемую парковку - качественный евроремонт Локация и трафик : - интенсивный автомобильный трафик - собственная парковка - удобный заезд, хорошая видимость с дороги - охрана, скоростной интернет, все центральные коммуникации Подходит под : - торговый зал, специализированный магазин - шоурум - медицинский центр / клинику - офис продаж - сервисную компанию и др. Арендная ставка обсуждается. Готовы к диалогу с сетевыми арендаторами.